Le site d'annonces immobilières de votre région -
Vente - Location - Location vacances
14 octobre 2025
Recherche rapide


Les studios et T1 à Bouaye

19 annonces disponibles aujourd'hui à 22:13 sur Dmaisons-paysdelaloire.com
à Bouaye
19 annonces disponibles,
dernier ajout mercredi 23 novembre 2022
Créer une alerte e-mail
Envoyer à un ami
Imprimer les fiches
Trier par
décroissant
Page 0 sur ... 0
 
RECEVEZ TOUTES LES NOUVELLES ANNONCES
EN TEMPS RÉEL
Aucune annonce ne se rapproche de vos critères de recherche
Nous vous invitons à élargir votre recherche pour les consulter !

Studio et t1 Bouaye
Vente
Bouaye (44)
Loire-Atlantique
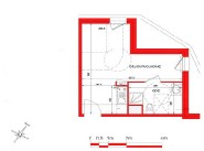
Beau studio de 27 m2 conviendrait à la location .....bon rapport m. christophe noirot / 02 533 544 02 poste 9017 [email protected] agent commercial indépendant du réseau national clairimmo maxihome n° rsac : 487898389 fci - ville du greffe : mandat : 06476n3207 ref : 06476n3207mx1017

VOTRE RECHERCHE
Annonces *
Biens *
1 sélection(s)
Localités *
Cliquer pour modifier la localité
Étendre à aux alentours
Critères optionnels
Prix
Surf. habitable
Terrain
Pièces
Chambres
Date d'annonce
RECEVEZ LES ANNONCES
EN TEMPS RÉEL
Retrouvez chaque jour dans votre boîte e-mail toutes les nouvelles annonces immobilières.
PUBLICITE